Année2021 - 2024 ClientB&C France MissionConception CertificationsE2C1 - HQE NF Bâtiment - Passeport bâtiment durable Budget4,4 M€ SiteSaint-Deinis Superficie1 900 m2 StatutConcours lauréat
Angle Wilson — Conception d’un bâtiment de bureaux

Un bâtiment signal entre héritage et modernité.

En retrait du front bâti, discret pour le piéton proche, mais visible pour le lointain ou le passager du RER qui passe brièvement, « la lanterne » s’élève au-dessus de l’îlot, comme un signal, un point de repère. Sa forme légèrement élancée vers le ciel, oriente le bâtiment vers le carrefour. Tout en présentant une écriture résolument contemporaine, le projet s’inscrit durablement dans le paysage de Saint-Denis, en répondant à un contexte multiple :
Celui de la rue du Landy en poursuivant le rythme des façades faubouriennes qui la composent ;
Celui de l’avenue, en prolongeant la perspective du front bâti à l’alignement ;
Celui du train aérien, en couronnant le bâtiment par un objet qui dialogue avec le passager de par son positionnement en retrait et sa conception contrastée ;
Celui du cœur d’îlot par un jeu d’épannelages.

Année2018 - 2021 ClientB&C France MissionEnveloppe Budget6,4 
M€ SiteSaint-Denis Superficie4 900 m2 StatutLivré
Station 84 — Réhabilitation lourde d’un ensemble de bureaux

Bâtiment signal, iconique et hybride, il apporte une réponse aux nouveaux modes de travail.

Sur l’avenue Wilson, l’immeuble bénéficie d’une parfaite visibilité, offrant aux entreprises locataires de la Station 84 une identité visible et forte. L’entrée, premier contact du lieu, est pensée comme un écrin chic, lumineux, et adaptée à l’accueil piéton. Elle joue le rôle de tampon visuel et phonique entre la nouvelle cour et la circulation extérieure.

Depuis la rue Proudhon, l’immeuble appelle à la mémoire du lieu, avec la restauration des façades en briques de l’ancien bâtiment, leur donnant un aspect résolument contemporain. Les ouvertures sont elles aussi repensées dans un élan d’harmonie. La terrasse arrière, au nord, est désormais protégée du bruit et du vis-à-vis et devient un solarium tourné vers la cour.

à l’intérieur de la parcelle, les espaces de convivialité prennent place dans un cœur d’îlot végétalisé. Multiplicité des terrasses, percées visuelles, transformation de l’escalier, forte sensibilité écologique. Tout converge pour donner une cohérence et une identité propre à ce lieu hybride dédié à l’épanouissement personnel et social, et au travail.

Année2013 - 2021 ClientCoffim MissionComplète CertificationsCERQUAL NF Habitat - RT2012 Budget11,7 M€ SiteBagnolet Superficie7 012 m2 StatutLivré
Usines Belin — Restructuration d’un patrimoine industriel, construction de 99 logements et 1000 m2 d’espaces d’activités

Organisé autour d’un jardin central, le projet est pensé comme le prolongement du tissu urbain existant.

Concevoir une opération mixte dans le centre-ville de Bagnolet, c’est avant tout prendre conscience du contexte historique industriel local et des dynamiques de transformation urbaine engagées par la municipalité.

Afin d’inscrire le projet dans la continuité du tissu urbain hétéroclite de la ville, il est nécessaire de travailler à plusieurs échelles. D’une part, celle de la ville, en articulant le projet autour d’un jardin central. Une typologie variée d’habitat se dessine afin de s’intégrer dans le bâti du quartier. D’autre part, celle du bâtiment, en tirant parti de la réhabilitation des anciennes usines Belin, inscrites au patrimoine industriel remarquable de la ville de Bagnolet.

Le projet s’inspire de l’existant pour proposer une diversité de volumes, teintes et matières. Une cour d’honneur est recréée avec une nouvelle aile, révélant un pendant contemporain de celle conservée.

Conception: GCG Architectes + Acoupel Architecture

Année2019 ClientCoffim MissionConcours SiteRueil-Malmaison Superficie2 200 m2 StatutSuspendu
Rueil-Malmaison — Conception de 30 logements

Un projet préservant l’emprise végétale favorable à la biodiversité et aux économies d’énergies.

Situé à Rueil-Malmaison, à la lisière entre ville et forêt, le projet tire son essence de cet environnement ambivalent et la décline dans sa volumétrie et ses matériaux.

On retrouve l’esprit des maisons individuelles, qui, ayant intégré les nécessités du développement durable s’accolent en deux groupes, et permettent une compacité bénéfique aux économies d’énergies et à la préservation de la biodiversité.

Chaque habitation mêle de l’urbain et du champêtre, par la juxtaposition d’ensembles constructifs en béton et à ossature bois. L’assemblage du bois clair et de l’enduit met en valeur cette discontinuité pour une lecture rythmée des façades.

En minimisant la profondeur des bâtis, la plupart des appartements bénéficient d’une double ou d’une triple orientation. La totalité des logements disposent de larges baies vitrées permettant au soleil d’inonder les intérieurs. Chacun possède un espace extérieur : jardin ou terrasse, dont la végétation omniprésente ceint les immeubles jusqu’aux limites parcellaires.

Année2013 - 2019 ClientCoffim MissionComplète Budget3,4 M€ SiteBoulogne-Billancourt Superficie1 575 m2 StatutLivré
Boulogne — Construction de 23 logements et d'un commerce

Par un travail d’échelles, de proportions, et de teintes, l’immeuble s’insère en douceur dans cet îlot dense.

Dans un contexte de densification de la ville, l’opération s’inscrit sur cette parcelle traversante comme un trait d’union entre deux rues et deux typologies d’architecture. Le traitement des façades ainsi que le jeu de niveaux intègrent le bâtiment dans le tissu urbain existant, évitant des ruptures brusques dans les volumétries avoisinantes. Au sein de la parcelle, l’immeuble se développe en U autour d’un patio végétalisé.

Les logements sont tous uniques par leur aménagement et les espaces extérieurs dont ils jouissent : terrasse, loggia ou balcon. L’aménagement des parties communes a été pensé avec soin : la signalétique, les garde-corps, les moquettes, les mosaïques de pierres ont été dessinés sur mesure pour créer un univers singulier et unique. Un toit-terrasse végétalisé offre une vue dégagée sur Paris et la Tour Eiffel.

Année2016 - 2018 ClientPrivé MissionComplète SiteParis XVI Superficie300 m2 StatutLivré
Villa Chaillot — Restructuration et restauration d’un hôtel particulier de cinq niveaux, aménagement intérieur et décoration

Valoriser le caractère de la maison par un imaginaire audacieux.

Premier bâtiment édifié de cette voie privée du XVIe arrondissement de Paris, cet hôtel particulier présentait à l’origine un caractère anglo-saxon, avec une cour anglaise, un rez-de-chaussée surélevé et un appareillage complexe de briques. Entre restructuration lourde et ajouts contemporains, la maison revêt une nouvelle identité plus forte.

Pensé tout en contraste, le bâtiment se dote d’une baie vitrée double hauteur, de balcons en serrurerie noire fine, et d’un toit-terrasse accessible. La porte d’entrée et l’escalier principal sont déplacés sur le côté afin de créer une véritable entrée et permettre de repenser l’aménagement intérieur, et ainsi gagner en fluidité. L’ensemble des espaces intérieurs est réalisé sur mesure grâce au savoir-faire de nombreux artisans. La cuisine est placée en façade pour profiter d’un apport en lumière naturelle.

Année2021 ClientPitch Promotion MissionConcours SiteParis Superficie5 702 m2
Réinventer Paris — Réhabilitation d’un bâtiment et construction de 85 logements

Le garage part, mais reste là !

 

Par une hauteur d’étage particulière, un détail de poutre, ou de plancher apparent, il reste en filigrane, dans les mémoires, dans le regard de l’œil averti… dans sa structure même d’une ancienne histoire commencée en 1955.

Aujourd’hui, nous proposons de raviver la mémoire de ce lieu en respectant son histoire et en lui donnant une seconde vie.

Construit à l’origine sur la totalité du terrain, c’est un travail minutieux de réhabilitation qui démarre, où la démolition est réduite au minimum, plus de 60% des surfaces du bâtiment sont conservées afin d’obtenir des vues, une hauteur sous plafond vivable et un ensoleillement nécessaire à l’habitat. Le reste est créé par surélévation. Toutes les parties neuves font le choix de la construction bois et de l’emploi de matériaux majoritairement biosourcée.

Les architectures des façades sont variées et harmonieuses grâce au principe commun de menuiseries extérieures en bois et d’une vêture en terre cuite emmaillée déclinée dans un camaïeu de verts. Posés en chevrons, les terres cuites en façade rappellent les nervures d’une feuille. On retrouve également ce motif sur le dessin des gardes corps en serrurerie. Des stores extérieurs permettant d’assurer le confort d’été habillent les fenêtres d’une robe verte en dégradé. Le vert sombre des parements en RDC s’éclaircit d’étage en étage pour se confondre avec la végétalisation en toiture.

En cœur d’îlot les façades révèlent l’ossature béton existante et la surélévation en bois. Le bâtiment propose une diversité de terrasses et de loggias orientées Sud. Des vues sur les jardins paysagés et la toiture végétalisée en cœur d’îlot offrent au plus grand nombre l’opportunité de « vivre dans un jardin » en plein Paris.

Le projet prévoit l’aménagement et la construction d’environ 85 logements dont 60% de logements sociaux.

Pendant les études et le chantier, la mutation du site est accompagnée de démarches artistiques et culturelles favorisant la découverte et l’appropriation du lieu par les habitants et les riverains.

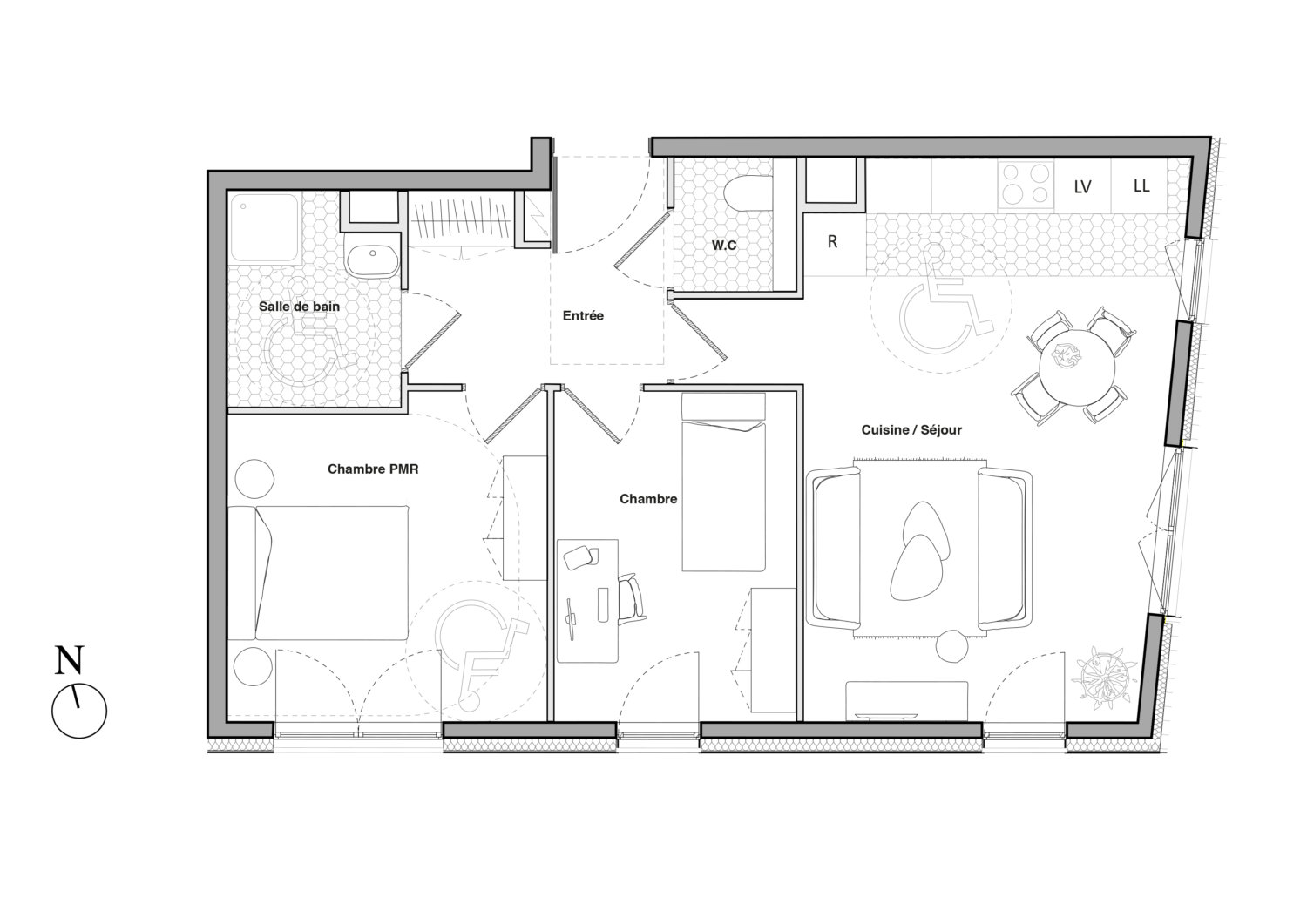
Année2021 - 2024 ClientInvestpar MissionComplète Budget2,5 M€ SiteParis XV Superficie1 068 m2 StatutEn cours
Rue des Entrepreneurs — Transformation et restructuration d’un garage en bureaux

Valorisation d’un patrimoine industriel et évolution des espaces de travail.

Le travail de réhabilitation, qui s’inscrit naturellement dans une démarche responsable, a été poussé par une ambition d’exemplarité environnementale. À titre d’exemple le projet prévoit deux patios, qui outre leur apport en lumière naturelle, permettent par effet cheminée de créer un courant d’air afin de rafraîchir le bâtiment en période estivale, offrant ainsi un système de ventilation naturelle. Ces patios seront équipés sur leur partie supérieure de verrière performantes à ouvertures pilotables.

Le projet incarne le bien-être au travail. Il porte ainsi une attention particulière au design des espaces intérieurs, dans l’esprit des lobbys d’hôtels.

Par ailleurs l’accès à des espaces extérieurs partagés et végétalisés constitue un atout important, la présence du végétal ayant un impact direct sur le bien-être humain. Les collaborateurs pourront y travailler ou se détendre en profitant de vues exceptionnelles sur Paris.

La recomposition des pleins et des vides a permis de réorganiser les volumes dans la masse bâtie ;

Le bâtiment a été redécoupé pour apporter le maximum de lumière à l’ensemble des postes de travail.

Année2020 - 2024 ClientIseo / Realites MissionComplète CertificationsBREEAM (niveau very good) - BBCA - E+C- Budget1,2 M€ SiteParis XVIII Superficie543 m2 StatutSuspendu
Rue des Cottages — Construction d’un immeuble de bureaux

Haute performance environnementale et flexibilité pour de nouveaux espaces de travail.

La construction à R+4 s’insère en douceur dans son environnement tant par sa volumétrie, trait d’union entre deux avoisinants de différentes hauteurs, que par la composition de sa façade sur rue et le choix des matériaux, bois et béton préfabriqué de teinte beige claire.

Les larges baies vitrées bois sont disposées au nu extérieur de la façade afin d’apporter un maximum de lumière naturelle au bâtiment mono orienté. En retrait, des panneaux bois oscillo battants, rappellent par leur largeur et positionnement le rythme des baies des constructions avoisinantes.

Les principes constructifs mis en place privilégient les filières sèches et préfabriquées limitant l’impact sur l’environnement. Ils permettent également d’atteindre un ratio de 70 % de construction bois en superstructure.

Une toiture-terrasse partagée et végétalisée apporte de la fraîcheur et participe à la constitution de la trame verte de la ville. Les collaborateurs pourront y accéder et se détendre en profitant d’une vue exceptionnelle sur Paris.

Année2021 ClientJ.P. Morgan & Redman MissionConcours SiteMalakoff Superficie30 000 m2
Malakoff — Conception des parties communes d'un immeuble de bureaux

En nous inspirant du monde végétal, nous tentons une synthèse de notre réflexion au travers un projet pensé comme un récit d’aventure, une invitation au voyage extra urbain.

 

Le projet raconte l’histoire d’une promenade dans un espace où les limites entre l’intérieur et l’extérieur sont poreuses, afin de faciliter les interactions entre le bâti et le naturel.

Ainsi le jardin pénètre dans le bâtiment, créant un lieu durable où le bien-être de l’usager est la priorité.

Année2021 - 2023 ClientB&C France MissionDécoration et architecture intérieure SiteMontreuil Superficie8 000 m2 StatutLivré
Urban — Rénovation intérieure et décoration de bureaux

L’immeuble URBAN propose un univers graphique et coloré, une jungle urbaine qui éveille la créativité.

Année2013 - 2018 ClientPrivés MissionComplètes SiteParis
Boutiques hôtels

Concevoir un endroit générant des expériences utilisateurs uniques dans une optique de valorisation des espaces.

Dans ces formats d’hôtels, les commanditaires sont relativement professionnels. Ce sont souvent des hôtels familiaux. Le premier rôle de l’architecte est d’optimiser et valoriser le site; tirer le meilleur parti de la configuration des lieux. De la parcelle. De l’existant.

Les projets sont à la jonction de l’architecture, de l’architecture d’intérieure, de la scénographie pour permettre aux hôteliers de faire vivre de belles expériences de vie à leurs clients. L’optimisation des espaces communs dans le cadre de l’hybridation et de la mutualisation des usages (coliving, coworking, etc.), doit pleinement tirer partie de l’organisation spatiale.

Dans le cadre d’une concurrence importance, le choix est fait de projets hyper-contextuels, tout en offrant des innovations techniques et ergonomiques.

Année2021 - 2025 ClientMail Par MissionComplète Budget3,7 M€ SiteParis X Superficie1 600 m2 StatutEn cours
Rue Dieu — Transformation et réhabilitation d’un atelier de confection en bureaux

Conception bioclimatique, histoire et économie circulaire.

Afin d’offrir une seconde vie à cet ancien atelier de confection notre démarche a été multiple :

En pérennisant une mixité programmatique d’activité et de logements par la conception d’un projet en dialogue permanent avec les différents acteurs locaux et voisins ;

En concevant de façon bioclimatique et en améliorant la végétalisation de la parcelle par la création d’un patio arboré, qui agit comme un élément de rafraîchissement des bureaux par un système de ventilation naturelle et par l’intégration d’un système de claustra qui protège des rayonnements et des vis-à-vis ;

En valorisant l’identité de ce patrimoine bâti par la conservation et la mise en valeur de son écriture industrielle ;

En limitant les démolitions et en réemployant sur site une grande partie des matériaux, qui en plus d’inscrire le projet dans une économie circulaire, participe à préserver l’âme et l’histoire du bâtiment (structure métallique, tuiles mécaniques, verrières recyclées en terrazzo, planches bois recyclées pour les gradins de l’auditorium)

La majorité des matériaux présents sur site sera conservée et réemployée après traitement in situ.

Année2019 ClientAltarea Cogedim MissionConcours CertificationsRT2012 - 10% et NF Habitat HQE SiteLe Vésinet Superficie2 213 m2
Foch Le Vésinet — Conception de 33 logements et 1 commerce

Les deux bâtiments semblent toujours avoir été là, comme prévus dans les plans initiaux du quartier.

En centre-ville, à deux pas de la gare, deux bâtiments mitoyens faisant l’angle de la rue du Maréchal-Foch et de la rue Alphonse-Pallu, affirment le caractère urbain de cet axe majeur de la ville. Le premier bâtiment accueille un commerce de 270 m2 au rez-de-chaussée et des logements dans les étages supérieurs. La trame de façade est caractérisée par une succession de bandeaux de pierres apparentes et de moulures d’encadrement.

Les fenêtres en métal noir contrastent avec la clarté des autres matériaux. Le second immeuble reprend l’appareillage polychrome des briques brun-ocre présentes dans la ville et déploie en toiture de larges verrières types atelier d’artiste. L’ensemble immobilier dialogue avec les écritures architecturales avoisinantes, revisitant les codes de la culture urbaine classique européenne.

Année2013 ClientCoffim MissionConcours Budget7 M€ SiteParis X Superficie4 000 m2
Faubourg du Temple — Conception de 60 logements dont 18 logements sociaux

Un socle lié à la cour, un faîte qui parle au ciel et un jardin d’hiver qui unit le haut et le bas.

Accessible par le porche d’un immeuble existant de la rue du Faubourg-du-Temple, ce projet de 60 logements collectifs en cœur d’îlot compose avec toutes les contraintes liées à son environnement urbain dense. L’enjeu est d’imaginer une réponse spécifique et adaptée pour ce quartier à l’identité forte et à la morphologie unique.

Afin d’éviter une construction massive verticale en R+8, le parti pris est de fragmenter le bâtiment en strates horizontales : un soubassement en briques à l’échelle de la cour s’insère dans la typologie des petits ateliers avoisinants. Un étage vitré sépare le soubassement du corps du bâtiment en béton poli blanc qui se confond avec le ciel. La toiture, délimitée par les prospects, prend une forme archétypale, la plus élémentaire et représentative de la fonction d’un habitat.

Année2018 ClientDemathieu & Bard Immobilier MissionConcours CertificationsNF Habitat HQE - E3 C1 - Effinature "Pass" Budget5 M€ SiteMontreuil Superficie3 000 m2
Montreuil — Conception de 37 logements et 590 m2 d’activités

Imaginé comme un ensemble varié et harmonieux, les bâtiments sont entourés par un espace généreusement végétalisé.

Le projet s’intègre avec soin dans deux contextes différents, celui du cœur d’îlot et celui de la rue. La façade sur rue propose un dégradé de teintes dans son revêtement et un traitement en courbes de ses angles, afin de s’insérer en douceur dans un contexte voué à se densifier. Le reste de la parcelle revêt un caractère de ruelle ou de village, où l’ensoleillement est maîtrisé, les arbres existants sont conservés et les murs pignons limités.

Puisant dans les références historiques du quartier et empruntant au vocabulaire industriel, le projet exprime une certaine pérennité architecturale. L’engagement écologique du projet est renforcé par la végétation omniprésente et continue, qui définie les limites de la parcelle. Les bâtiments adossés les uns aux autres permettent à l’ensemble des appartements de bénéficier d’une double orientation.

Année2018 ClientImmobilière 3F
 MissionConcours Budget3,38 M€ SiteBondy Superficie2 252 m2
Bondy — Construction de 35 logements en accession sociale

À rebours des grands ensembles présents sur le site, cette architecture de prismes présente une échelle d’habitats proche du petit immeuble de centre ville adaptée au programme de renouvellement urbain du quartier.

Inscrit dans le cadre du renouvellement urbain du quartier de la Noue-Caillet, ce projet pensé dans la continuité du tissu de la ville de Bondy, redonnera à terme une véritable qualité d’espaces lisibles.

L’enjeu du projet, dans son parti architectural sera de s’insérer dans ce principe urbain, en redessinant les limites d’un nouvel îlot destiné principalement à l’habitation.

Le cœur d’îlot, laissé libre, sera occupé par un parc de stationnement en plein air, disposé dans une enclave à un mètre au-dessous du niveau général de l’îlot. Cette enclave plantée d’arbres en pleine terre, permettra de contenir l’espace du parking, d’en diminuer l’impact visuel par les voitures stationnées en contrebas, et de créer une poche de verdure au sein d’un espace minéral. Ce cœur d’îlot planté participe ainsi au continuum de ceux en vis-à-vis, rue Suzanne Blin et rue Suzanne Buisson.

En collaboration avec Criterium Architecture.

Année2017 ClientBiltoki / Open Your MissionConcours Réinventer la Seine Budget3 M€ SiteParis X Superficie1 250 m2
Food Court — Transformation d'une friche

Transformation d’une friche industrielle des canaux de paris en food-court. Utilisation des transports fluviaux, création d’un endroit de convivialité et expérimentation de différentes facettes du mieux- vivre. Un message environnemental simple véhiculé par un bardage en épaves de navires recyclées.

La Halle de Rouvray, aujourd’hui délaissée, est un élément fort de la mémoire du quartier. Il nous paraît essentiel de permettre aux habitants de s’approprier ce lieu, de s’y sentir libre, d’y déambuler et d’y expérimenter différentes formes de vivre ensemble.

L’implantation du food-court prend la forme d’une seule et même entité à R+1 qui se déploie sur le site dans les volumes existants et s’enroule pour créer une place publique. La vocation environnementale et pédagogique du bâtiment est matérialisée par son bardage constitué d’éléments issus de la dépollution des canaux tels que le bois des épaves de bateaux de plaisance recyclés, ou de matériaux de réemploi de chantiers de la vallée de la Seine acheminés par barges. L’utilité d’un food-court, en plus de la mutualisation des espaces, c’est générer une coéducation des savoirs faire, et se réapproprier des espaces assez facilement d’un point de vue social dans une réalité économique.

Année2017 - En cours MissionConception SiteEurope
Appart-hôtels

Ensemble de rénovations des parties communes et privatives de huit appart-hôtels à travers la France et l’Europe dans le cadre du Programme « Stories » par le groupe Adagio. Création du concept de Coliving d’Adagio.

La rénovation des appart-hôtels d’Adagio a comme objectif de continuer à répondre aux attentes d’une clientèle en évolution, à la recherche de convivialité et de personnalisation des espaces à vivre.

Stories, c’est un programme qui promeut la sociabilité dans ces espaces. Qui met au centre de l’expérience Adagio la sociabilité que le groupe peut générer entre les personnes qui y habitent. Les espaces communs devaient donc se rapprocher de ce qu’on peut retrouver comme usage dans un appartement, avec toute la dimension informelle que cela peut engendrer. En même temps, il faut pouvoir proposer une esthétique forte qui ne peut se retrouver dans un lieu domestique habituellement.

Les projets proposés par l’agence se veulent très graphiques et uniques. Aptes à susciter l’étonnement et la curiosité, ils invitent au voyage et au dépaysement. Plusieurs univers sont déclinés :  la jungle heureuse dans un quartier de tours, un ilot de fraicheur dans une ville frappée par la chaleur, un voyage au temps des grandes découvertes dans une ville de navigateurs, une romance à Paris.

Année2019 ClientAltarea Cogedim MissionConsultation SiteSaint-Germain-en-Laye Superficie10 860 m2
Résidence Gaudines — Conception d’un EHPAD, d’une résidence sénior, de logements, d’une crèche et de commerces

Préserver l’alignement paysager existant afin de renforcer le front bâti, de créer de généreux espaces extérieurs et d’offrir de l’intimité aux habitants.

Situé à l’angle des rues des Gaudines et de Témara, ce projet est le point de départ des nouvelles orientations urbaines d’un ancien quartier d’affaires. L’EHPAD, implanté au croisement des deux rues, comporte quatre unités classiques et deux unités Alzheimer.

Les espaces de vie donnent sur l’extérieur, permettant aux résidents de conserver un contact avec la ville, tout en offrant à l’arrière de la parcelle des espaces richement végétalisés. La résidence sénior répond au cahier des charges du Cogedim Club, incluant divers services : restauration, salle de fitness, piscine, salle de cinéma…

à l’extrémité de la parcelle, un ancien immeuble de bureaux est transformé en logements collectifs. Le bâtiment est en recul par rapport à la voie pour préserver l’alignement paysager existant. Ce recul permet d’offrir des espaces extérieurs généreux pour les logements situés en rez-de-chaussée, tout en gardant une certaine intimité. Les derniers étages, placés en retraits, bénéficient de grandes terrasses.

Une crèche et un commerce de proximité sont également intégrés au projet.

Année2014 ClientCogedim / Coffim / FRG
 MissionÉtude urbaine
 SiteAsnières Superficie45 000 m2
ZAC Asnières — Parc des Affaires

Un quartier de logements connecté à la Seine. Une promenade urbaine verte où les chemins et la nature se confondent. Une diversité dans les formes architecturales à l’échelle de la ville.

Ce projet d’urbanisme vise à transformer un espace initialement prévu en bureaux en quartier résidentiel articulé autour d’un parc central orienté vers la Seine.

Afin de créer un quartier convivial et familial, les circulations ont été pensées douces et fluides et le bâti perméable. Une large voie piétonne, promenade urbaine et paysagère au cœur du projet, dessert les logements, et s’achève sur les quais de Seine.

La typologie proposée pour les constructions à venir est celle de la diversité architecturale : hauteurs et rythmes des façades variables dans le respect de l’échelle de la ville, des relations visuelles et des percées vers le parc. Mais aussi diversité des matériaux, des traitements des soubassements et attiques afin de créer une variété dans le paysage urbain. En front de Seine, le bâtiment est pensé comme un signal d’entrée de ville.

Année2013 ClientCité de l'Architecture et du Patrimoine MissionScénographie Budget146 K€ SiteParis XVI
Scénographie — Exposition Ricciotti, architecte

Conception de la scénographie au sein du Palais de Chaillot retraçant l’œuvre de l’architecte Rudy Ricciotti.

Le travail scénographique de l’exposition est guidé par une approche sensorielle, quasi animale, favorisant un rapport direct entre le travail de l’architecte et le visiteur.

Laissant place au mystère, dans une volonté non didactique, dans une semi-pénombre, des éléments emblématiques d’architectures à échelle 1 sortis de leur contexte permettent d’appréhender l’œuvre de Rudy Ricciotti dans sa dimension sculpturale et poétique.

D’une autre façon, l’exposition permet de voyager au cœur du bâtiment par un face à face entre des écrans panoramiques qui font lentement défiler des photos, offrant un rapport immersif avec le projet, et le toucher des différents matériaux.

L’utilisation minimum de matériaux procède de la volonté de réduire l’impact environnemental de la scénographie et de refléter la frugalité de matière dans ses réalisations.
Ainsi dans cette présentation ascétique, la place est laissée aux visiteurs pour développer un imaginaire qu’ils porteront sur le travail de l’architecte présenté.

Année2013 - 2017 ClientPrivé MissionMissions complètes SiteFrance et Italie
Maisons individuelles

La conception de chaque maison prend comme origine l’identité du commanditaire, la potentialité poétique du lieu, une rigueur environnementale, une fluidité des espaces et une cohérence des matériaux employés.

Chaque maison que l’on conçoit est la résultante de conditions contextuelles et par conséquence uniques. La maison est un des derniers types d’architectures libres de la plupart des normes. C’est notre responsabilité morale d’en faire bénéficier nos clients.

La conception d’une maison est le résultat d’un mélange précis. Il faut percevoir le génie d’un lieu, c’est à dire sa vibration, ses qualités spécifiques et ses potentialités uniques, plonger dans l’univers intime du futur propriétaire, et d’être à l’écoute des aspirations du monde. L’inspiration créatrice vient des relations que l’on peut tisser entre ces éléments, surtout qu’un projet de maison ne s’arrête pas aux murs de son enveloppe, mais englobe également ses espaces extérieurs.


This website stores cookies on your computer. These cookies are used to provide a more personalized experience and to track your whereabouts around our website in compliance with the European General Data Protection Regulation. If you decide to to opt-out of any future tracking, a cookie will be setup in your browser to remember this choice for one year.

Accept or Deny